2025年07月04日
2026年度4月期 留学生向け学生寮の入居者を募集します。
募集要項 / Application Guidelines (PDF形式)
入居申請書 / Application Form(Excel形式)
※単身の入居申請可能な期間は、最長1年です。
※夫婦室、家族室の入居期限が3年以内です。
※インターネット接続について:一部の学生寮では、各人でインターネットサービスに加入が必要です。
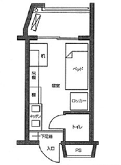
神戸大学インタ-ナショナル・レジデンス
レジデンスは、1981年3月、海外からの留学生及び研究者のための宿舎として神戸市のポートアイランドに建設され、1986年3月に新館が増築されました。
建物は鉄筋コンクリ-ト5階建で、留学生用として単身室109室、夫婦室6室、家族室3室があります。各部屋にユニットバス、トイレ、ミニキッチン、エアコンがあります。
| 月額使用料 | 寄宿料:単身室Dタイプ 18,000円 / Eタイプ21,000円、夫婦室Bタイプ 45,000円、家族室Aタイプ49,000円 共益費:Dタイプ・Eタイプ : 10,800円、Bタイプ : 14,900円、Aタイプ : 16,300円(2025年4月1日より値上げしました。) | ||||
|---|---|---|---|---|---|
| その他費用 | 電気代 (実費)、次の入居者のために居室を清掃する清掃料 (一回限り) (清掃料: Dタイプ: 11,000円 / Eタイプ: 12,000円 / Bタイプ: 20,000円 / Aタイプ: 27,000円) | ||||
| 共用施設 | 談話室、ランドリーコーナー、図書室、和室、会議室 | ||||
| 居室設備 | 机、椅子、ベッド、寝具、ワ-ドロ-ブ、インターネット(WiFi) ※部屋タイプにより異なる | ||||
| 見取り図 |
| ||||
| 通学時間 | ポートライナー、電車を利用し、約40~50分です。 | ||||
| 住所 | 〒650-0046 神戸市中央区港島中町2丁目4-2 [地図] | ||||
| 募集方法 | 7月及び1月に所属の学部又は研究科を通じて募集します。 |
神戸大学住吉国際学生宿舎
住吉国際学生宿舎は、1997年3月、学生の勉学環境の整備及び国際交流を推進するために建設されました。
この宿舎は、鉄筋コンクリ-ト5階建で、日本人学生及び留学生が居住し、留学生用として単身室が47室あります。
| 月額使用料 | 4,700円 共益費6,000円 | |
|---|---|---|
| その他費用 | 入寮時徴収金:30,000円(入寮時のみ) 水道料金: 2ヶ月毎に上記共益費に加算 電気料金: 関西電力と寮生が契約 自治会費:年額3,000円 | |
| 共用施設 | 談話室、キッチン、洗濯室 (洗濯機・乾燥機付)、風呂、シャワー室 ※食堂はありません。 | |
| 居室設備 | 机、椅子、ベッド、ワードローブ、エアコン、カーテン、下足箱、トイレ、TVアンテナコンセント、ミニキッチン (電気クッキングヒーター・ミニ冷蔵庫付) | |
| 見取り図 |
| |
| 通学時間 | バスや電車の利用又は徒歩通学、いずれの場合も約40~50分です。 | |
| 住所 | 〒658-0063 神戸市東灘区住吉山手7丁目3-1 [地図 ] | |
| 募集方法 | 7月及び1月頃に所属の学部又は研究科を通じて募集します。 |
神戸大学住吉寮
この宿舎は、鉄筋コンクリート4階建で、日本人学生及び留学生が居住し、留学生用として15室あります。
| 月額使用料 | 18,000円 共益費:5,000円 | |
|---|---|---|
| その他費用 | 入寮時徴収金: 30,000円 (入寮時のみ) 水道料金: 2ヶ月毎に上記共益費に加算 電気: 関西電力と寮生が契約 自治会費: 3,000円(年額) | |
| 共用施設 | 自習室、図書室、集会室、洗濯室 (洗濯機・乾燥機付)、トレーニングルーム ※食堂はありません。 | |
| 居室設備 | 机、椅子、折りたたみベッド、ワードローブ、エアコン、カーテン、下足箱、ユニットバス・トイレ、TVアンテナコンセント、ミニキッチン (IHクッキングヒーター・ミニ冷蔵庫付) | |
| 見取り図 |
| |
| 通学時間 | バスや電車の利用又は徒歩通学、いずれの場合も約40~50分です。 | |
| 住所 | 〒658-0063 神戸市東灘区住吉山手7丁目3-1 [地図 ] | |
| 募集方法 | 7月及び1月頃に所属の学部又は研究科を通じて募集します。 |
国際交流会館 (深江地区)
留学生用として夫婦室10室、家族室4室があります。各部屋にユニットバス、トイレ、流し台、エアコンがあります。
| 月額使用料 | 夫婦室 9,500円、家族室 11,900円 | |||
|---|---|---|---|---|
| その他費用 | 共益費 12,000円、電気代・水道代・ガス代 (各実費)、次の入居者のために居室を清掃する清掃料 (一回限り) (清掃料: 夫婦室: 38,500円 / 家族室: 44,000円) | |||
| 居室設備 | (夫婦用) | 冷蔵庫、IHクッキングヒーター、衣類乾燥機、洗濯機、食器棚、ベッド、食卓テーブル・イス、インターネット (WiFi) | ||
| (家族用) | 冷蔵庫、IHクッキングヒーター、衣類乾燥機、洗濯機、食器棚、ベッド、子供用ベッド、食卓テーブル・イス、机、イス、子供用机・イス、インターネット (WiFi) | |||
| 見取り図 |
| |||
| 通学時間 | 六甲台キャンパスへは電車・バスを利用し約50分です。海事科学部キャンパスへは徒歩約8分です。 | |||
| 住所 | 〒658-0015 神戸市東灘区本山南町1-4-50 [地図 ] | |||
| 募集方法 | 7月及び1月頃に所属の学部又は研究科を通じて募集します。 | |||
白鴎寮 (深江地区)
留学生用として単身室 (男子用) 9室、 (女子用) 2室があり、1ユニット4個室タイプとなっています。
| 月額使用料 | 寄宿料:5,900円 共益費:12,000円 (寝具レンタル、シーツ洗濯、清掃費を含む。) | |
|---|---|---|
| その他費用 | 入寮時徴収金:30,000円 光熱水費: 各ユニット単位で、居住人数により按分 自治会費: 月額200円 | |
| 共用施設 | 談話室、キッチン、浴室、洗面所、洗濯室 共用設備: 電気クッキングヒーター、食器棚、吊り棚、食卓、椅子、冷凍冷蔵庫、 電子レンジ、全自動洗濯機、衣類乾燥機、テレビ、エアコン、下足箱 | |
| 居室設備 | 机、椅子、本棚、ベッド、寝具、ワードローブ、カーテン、エアコン、 トイレ、ケーブルテレビ (月額3,980円) | |
| 見取り図 |
| |
| 通学時間 | 六甲台キャンパスへは電車・バスを利用し約50分です。海事科学部キャンパスへは徒歩約8分です。 | |
| 住所 | 〒658-0015 神戸市東灘区本山南町1-4-50 [地図 ] | |
| 募集方法 | 7月及び1月頃に所属の学部又は研究科を通じて募集します。 |
国維寮
国維寮は、1966年に日本人男子学生の寮として建設され、2011年10月に耐震補強等を行い、留学生、日本人、男女混住寮として、リニューアルオープンいたしました。留学生用として111室、日本人用として25室あります。鉄筋コンクリート5階建 (平成23年改築)、居室面積12㎡ (1人部屋)
| 月額使用料 | 寄宿料 18,000円 共益費 5,000円 | |
|---|---|---|
| その他費用 | 入寮時徴収金:30,000円 (入寮時のみ) 水道料金: 2ヶ月毎に上記共益費に加算 電気料金: 関西電力と寮生が契約 | |
| 共用施設 | 自習室、集会室、和室、コインランドリー (洗濯機及び乾燥機備付)、自動販売機 (ソフトドリンク用) | |
| 居室設備 | 机、椅子、折りたたみベッド、ワードローブ、エアコン、カーテン、下足箱、ユニットバス・トイレ、TVアンテナコンセント、ミニキッチン (IHクッキングヒーター・ミニ冷蔵庫付) | |
| 見取り図 |
| |
| 通学時間 | 六甲台キャンパスまでは徒歩で30分程度、バスを利用した場合20分程度です。 | |
| 住所 | 〒657-0813 神戸市灘区高尾通3-2-33 [地図 ] | |
| 募集方法 | 7月及び1月頃に所属の学部又は研究科を通じて募集します。 |
神戸大学女子寮
この宿舎は、鉄筋コンクリート4階建で、日本人学生及び留学生が居住し、留学生用として11室あります。
| 月額使用料 | 18,000円 共益費:6,000円 | |
|---|---|---|
| その他費用 | 入寮時徴収金: 30,000円 (入寮時のみ) 水道料金: 2ヶ月毎に上記共益費に加算 電気: 関西電力と寮生が契約 自治会費: 1,000円(年額) | |
| 共用施設 | 自習室、和室、図書室、集会室、洗濯室 (洗濯機・乾燥機付) ※食堂はありません。 | |
| 居室設備 | 机、椅子、折りたたみベッド、ワードローブ、エアコン、カーテン、下足箱、ユニットバス・トイレ、TVアンテナコンセント、ミニキッチン (IHクッキングヒーター・ミニ冷蔵庫付) | |
| 見取り図 |
| |
| 通学時間 | バスや電車の利用又は徒歩通学、いずれの場合も約40~50分です。 | |
| 住所 | 保安上の理由により住所・電話番号等は掲載しておりません。 | |
| 募集方法 | 7月及び1月頃に所属の学部又は研究科を通じて募集します。 |
お問い合わせ
留学生用宿舎に関するお問い合わせ
神戸大学学務部国際交流課留学生支援グループ
〒657-8501 神戸市灘区六甲台町1-1
電話 : 078-803-5264
Email : stdnt-ryulife [at] office.kobe-u.ac.jp (※ [at] を @ に変更してください。)










